Početna
Faza 3
Jednosobni stanovi
Dvosobni stanovi
Trosobni stanovi
Prethodne faze
O Projektu
Investitor
Lokacija
Zakaži sastanak
+381 60 60 72 020
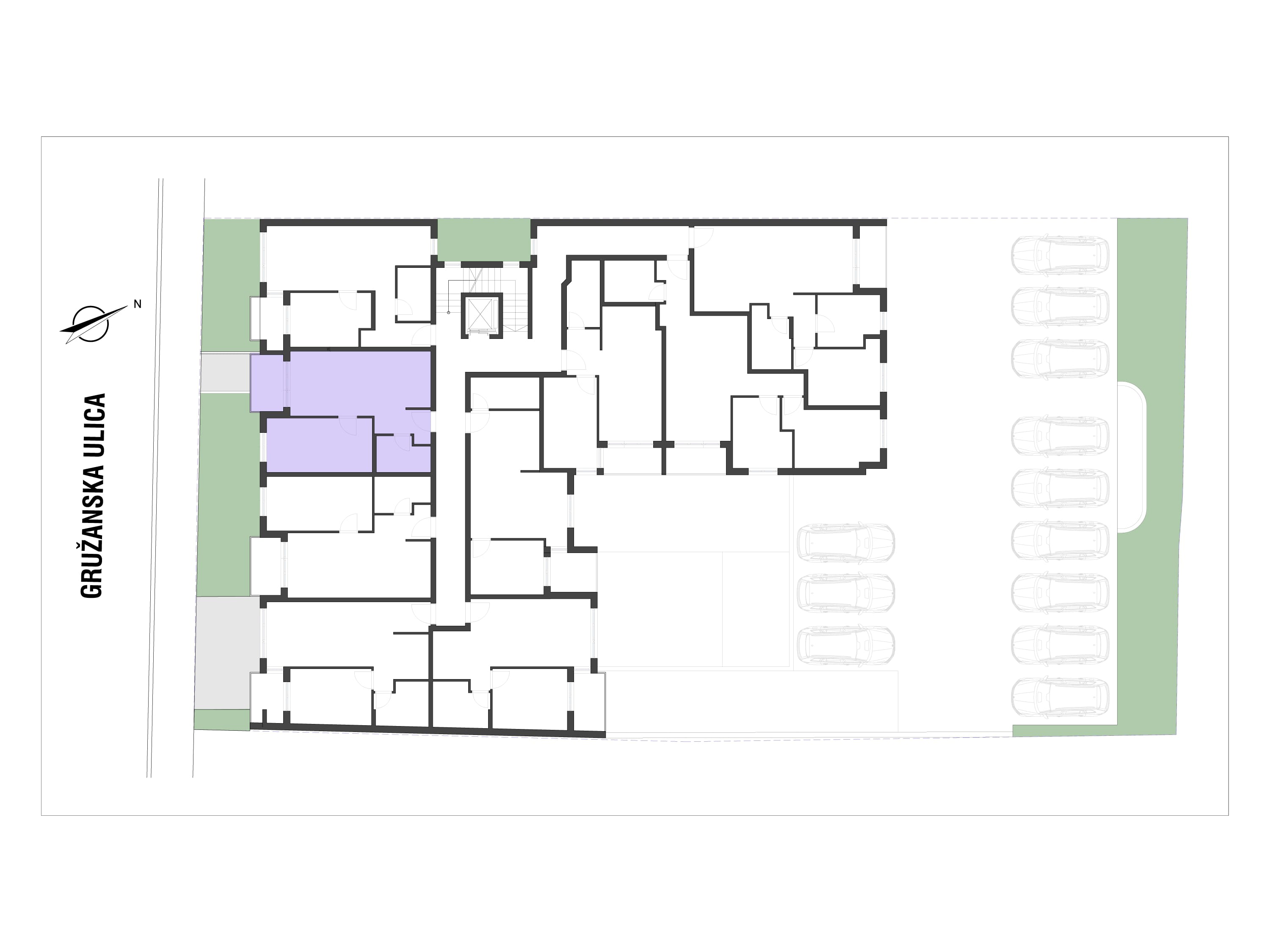
Dvosoban stan Tip 9
Površina 45m2
Objekat III:
Sprat 1 -
REZERVISANO
Sprat 2 -
REZERVISANO
Sprat 3 -
DOSTUPNO
Sprat 4 -
DOSTUPNO
Sprat 5 -
DOSTUPNO
Klikni za još dvosobnih stanova
Ime i prezime
E-mail
Kontakt telefon
Poruka
Pošalji upit